Trilocale in vendita

Palermo, Via clio - Mondello
€ 150.000
3 locali 3 locali
65 Mq 65 Mq
1 bagno 1 bagno

Trilocale in vendita

Palermo, Via clio - Mondello

Descrizione annuncio

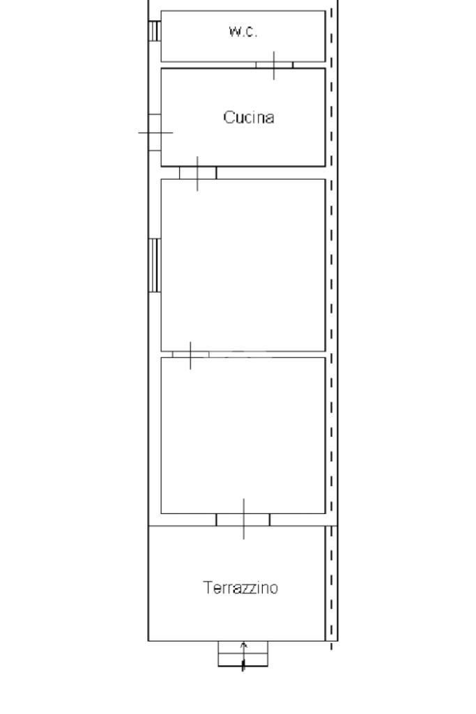
Agenzia Tecnocasa Mondello propone in vendita un appartamento in villa posto al piano rialzato di 90 mq con spazio esterno.

L'immmobile è composto da un'ingresso su cucina abitabile, comodo soggiorno, una camera da letto e un servizio con box doccia.

Potete richiedere maggiori informazioni scrivendoci a Contatta l'Agenzia con il servizio 'Invia Richiesta' o chiamandoci allo 091.974. 01.57.

Il nostro franchising, su richiesta, mette a disposizione dei propri clienti un consulente Kiron che, si occupa della mediazione creditizia e assicurativa.

Contattateci se volete una consulenza, gratuita, per sapere quale sia la scelta più adatta alle vostre esigenze.

Mostra tutto

Nelle vicinanze

Trasporto pubblico Trasporto pubblico
Mattei / Calliope
Mattei / Calliope
410 m
Mattei / Afrodite
Mattei / Afrodite
440 m
Scuole Scuole
Scuola Elementare Giovanni Pascoli
970 m
Scuola Giovanni Falcone
1,7 Km
Istituto comprensivo Loeonardo Sascia
2,1 Km
Farmacia Farmacia
Farmacia
1,1 Km
Rizzo
1,6 Km
Supermercati Supermercati
Carrefour
760 m
Arancio supermarket
1,5 Km
Conca Doro c.commerciale
2,1 Km
Eurospin
2,4 Km
Lidl
2,4 Km
Negozi Negozi
Negozi
1,6 Km
Bar Bar
Bar Galatea
910 m
Antico chiosco
1,6 Km
Danimart
1,6 Km
Bonida
2,0 Km
Scalea Club
2,5 Km
Ristoranti Ristoranti
Sporting Club
390 m
Le Antiche Mura
580 m
Badalamenti Cucina E Bottega
910 m
Ristorante Alle Terrazze
980 m
Ristoranti
990 m
Mostra tutto

Caratteristiche

Rif.:
61147704
Piano:
Terra di 1
Totale piani:
1
Terrazzi:
1
Camere da letto:
1
Arredamento:
Assente
Mostra tutto
Prezzo Prezzo
€ 150.000
Rata mutuo Rata mutuo
€ 708 / mese
Spese annue Spese annue
€ 0
Proponi il tuo prezzoProponi il tuo prezzo

Classe Energetica

G
G
G
G
G
G
G
G
G
EP globale non rinnovabile:
14738.00 kW h/m² anno
EP globale rinnovabile:
14738.00 kW h/m² anno
EP invernale del fabbricato:
EP estiva del fabbricato:
Anno di costruzione:
1960
Riscaldamento:
Autonomo
Tipo impianto:
Ad aria
Tipo alimentazione:
Aria

Ti interessa visionare l'immobile?

Fissa un appuntamento  Fissa un appuntamento

Richiedi informazioni

Clicca su Leggi per aprire l'informativa
* Questi campi sono obbligatori

Calcola il tuo mutuo

Semplice e senza impegno
Anticipo

( % )
Mutuo

( % )

pochi semplici passi

inserisci i tuoi dati
Questionario completato
Grazie per aver richiesto un appuntamento senza impegno con un nostro Consulente del Credito e Assicurativo.

Hai inserito correttamente tutti i dati necessari e a breve riceverai una e-mail con un link da convalidare per inviare i tuoi dati.
Affiliato
Re Start Srl
Via Carbone, 51 90134 Palermo (PA)

Il nostro staff


  • Emanuela Bilello
    Coordinatrice

  • Antonino Carollo
    Responsabile

  • Gianluca Fantauzzo
    Collaboratore

  • Marco Li Mandri
    Collaboratore

  • Chiara Russo
    Collaboratrice
Via Carbone, 51 90134 Palermo (PA)
Zona: Mondello
Mostra su mappa
Orari: Lun - Ven 09:00 - 13:00 ; 16:00 - 20:00 Sab 09:00 - 13:00
Affiliato
Re Start Srl
Via Carbone, 51 90134 Palermo (PA)

2025 Tecnocasa Franchising S.p.A. - P. IVA 08365160152 - Via Monte Bianco 60/A 20089 Rozzano (MI). Ogni agenzia ha un proprio titolare ed è autonoma. Privacy policy | Policy utilizzo | Cookie policy